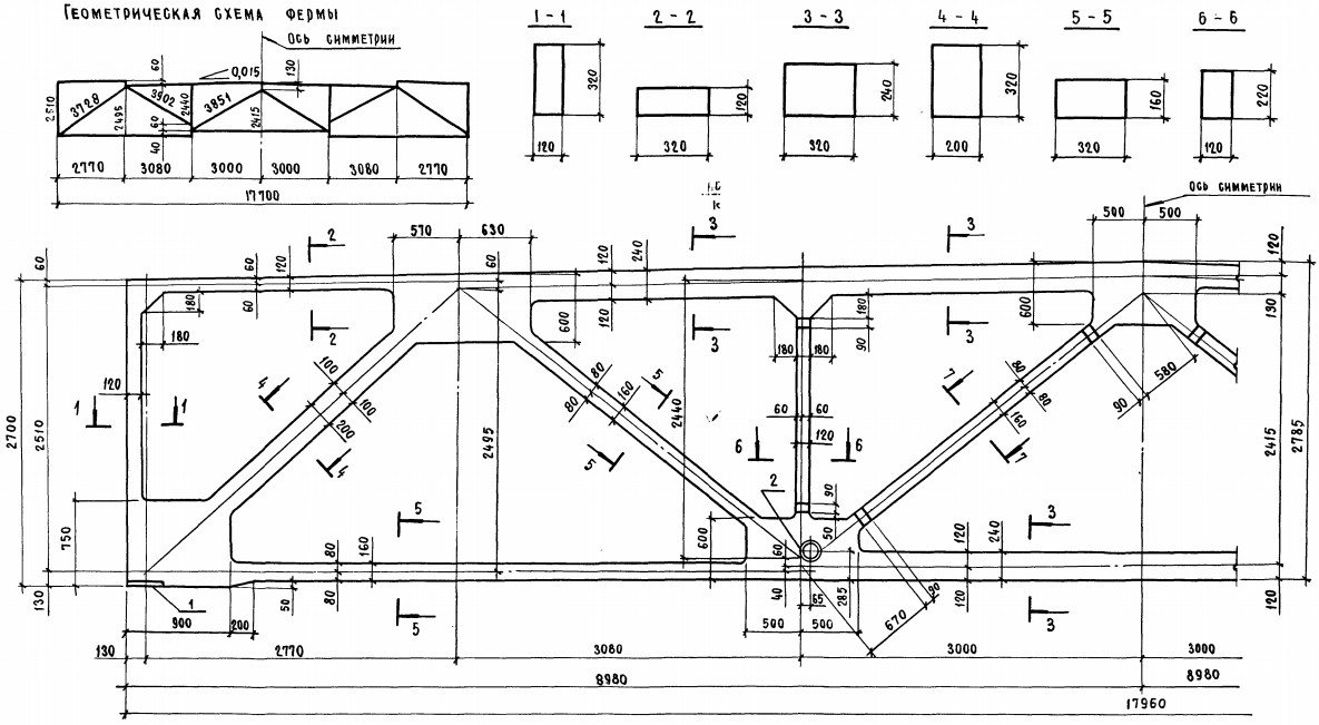
ОТГРУЗИЛИ ИЗДЕЛИЙ с 2008 года: тонн по чертежам тонн по сериям и ТУ тонн из артбетона Ферма 3.1ФСП24-09.45 АIV Серия 1.463.1-17
Популярные товары в каталоге
![]()
У нас можно заказать изготовление по чертежам любых ЖБИ
в соответствии с ТР ТС
Доставка в любой город России и Казахстана Цена от 10000 рублей за 1 м3 ( от 5 руб за кг). Производство ЖБИ
Консультация эксперта
Сергеев Александр Вячеславович - Эксперт с 25-летним стажем в сфере производства ЖБИ и изделий из бетона.
Смотрите также:Ферма 3.1ФСП24-09.45 АIIIв Серия 1.463.1-17
Ферма 3.1ФСП24-08.40 АV Серия 1.463.1-17 Ферма 3.1ФСП24-08.40 АIV Серия 1.463.1-17 Ферма 3.1ФСП24-09.45 АV Серия 1.463.1-17 Ферма 3.1ФСП24-10.45 АIIIв Серия 1.463.1-17 Ферма 3.1ФСП24-10.45 АIV Серия 1.463.1-17 Ферма 3.1ФСП24-09.45 АIV Серия 1.463.1-17 в наличии и под заказ по цене от 10 т.р. за м3. У нас можно купить ЖБИ «Ферма 3.1ФСП24-09.45 АIV Серия 1.463.1-17» с доставкой в любой город, а также любые ЖБИ изделия.
Нам доверяют:
|




